ようこそ様
pt
Language
日本語
English
한국어
中文(简体)
中文(繁体)
アクセス
よくあるご質問
お問い合わせ
052-251-2411
宴会・会議
一覧へ戻る
ようこそ、様
会員
0pt
ログイン時にエラーが発生いたしました
ご利用のアカウントはロックされています。 こちらから再度パスワードを設定してください。
コンフォートメンバーズの方
パスワードについて(ロックがかかってしまった場合)
パスワードをお忘れの方は、こちら
パスワード設定がお済でないお客様はこちら
宿泊のご優待やポイントもたまる!便利な会員サービス
ログアウト
現在のステータス:
利用可能ポイント
0p
うち1000pは有効期限年12月31日まで
詳細を見る
年4月~年3月
年間ポイント:0p
年間ポイント:CLEAR!
累計ポイント:0p
累計ポイント:CLEAR!
会員ステータスはこちら
ポイント
お客さま情報
会員証
様
0
予約 閉じる
ログイン
会員番号またはメールアドレス
パスワード
パスワードをお忘れの方は、こちらからご確認ください
パスワード設定がお済みでないお客様はこちら
法人サイトはこちら
ご宿泊、レストランでのご優待をはじめ多彩な特典をご用意しております。
トップ
宿泊プラン
会員限定
ポイントアップ
タイムセール
チケット付
早期割引
連泊
ファミリー
グループ
記念日
マイル積算対象
デイユース
おすすめ
客室
宿泊のご案内・各種サービス
ルームサービス
ロイヤルスイート メゾネット
エグゼクティブフロア
ユニバーサルルーム
東急ホテルズの環境活動
笑顔になる朝食
レストラン&バー
レストランプラン一覧
テイクアウトメニューのご案内
レストラン「ロワール」 フレンチ
レストラン「ロワール」 鉄板焼
中国料理「南国酒家」
日本料理「なだ万」
オールデイダイニング「モンマルトル」
アトリウムラウンジ 「グリンデルワルド」
メインバー「フォンタナ ディ トレビ」
ベーカリーショップ
MICE
High-Speed Internet Service
宴会場料金一覧
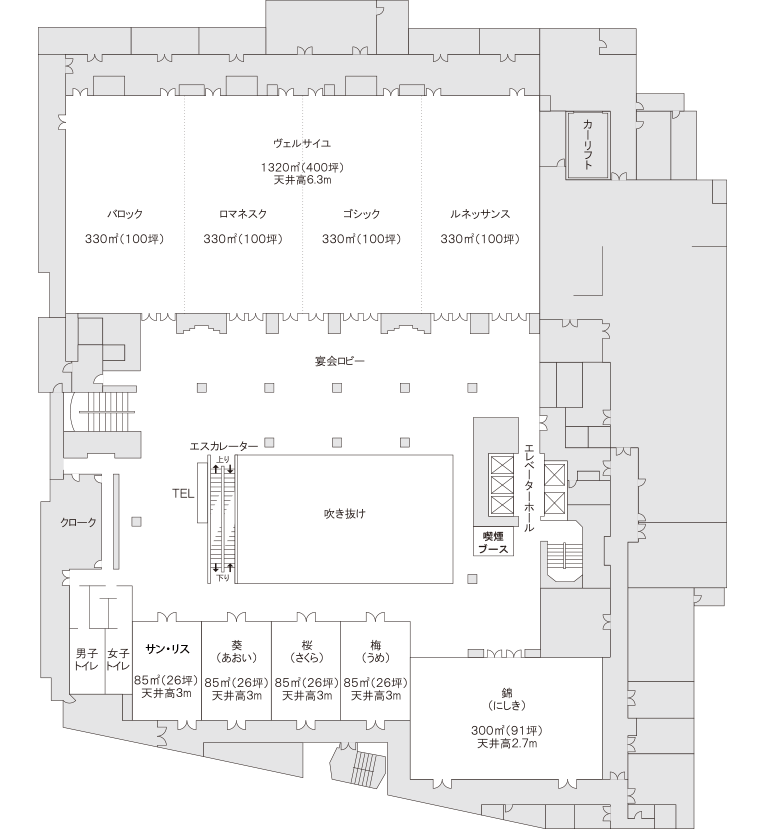
フロアマップ
宴会プラン
ウエディング
施設案内
観光情報
総合案内
コンフォートメンバーズのご案内
名古屋東急ホテルオリジナル コンフォートメンバーズ特典
デリスメンバーズカードのご案内
法人契約サービスについて
ニュースリリース
一般事業主行動計画策定について
無線LAN(Wi-Fi)サービスのご案内
採用情報
名古屋東急ホテルのSDGs活動
拡大する
ログインの際は、ID、パスワードとも法人会員番号を入力してください。
閉じる
宿泊のご優待やポイントもたまる!便利な会員サービス