pt

Language

  • 日本語

  • English

  • 한국어

  • 中文(简体)

  • 中文(繁体)

Ball Room B

Current status:

Available points

0p

home 1000 p is
date of expiry Until December 31st

view the details

128㎡ banquet hall

We will assist you with our heartfelt hospitality to add an extra sparkle to your memorable occasion.
This venue is divided into the Ballroom.
This banquet hall is ideal for meetings and parties of approximately 40 to 50 people. It can also be used as a venue for medium-sized company information sessions, social gatherings, alumni gatherings, and wedding after-parties.

Venue Details

floor

3F

area

128㎡

area

39 tsubo

Maximum occupancy

90 people

Venue Style

Formal, Stand-up, School, Theater, Square

The displayed price includes 10% service charge and 10% consumption tax.

The banquet hall's standard operating hours are 9:00am to 9:00pm.

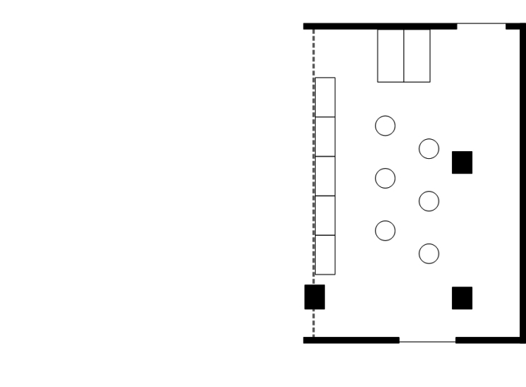
Layout example

School style, 63 seats

Theater style, 90 seats

Seating format: 50 seats

Standing reception for 50 people

The above is an example of a layout. We will make various suggestions and adjustments during the meeting.

Reservations/Inquiries

Direct: 9:00-18:00

If your call is set to anonymous, please turn it off and try calling again.

Other banquet halls

The Ballroom has an elegant atmosphere and is fully equipped.
It can be used for a variety of purposes, including meetings, seminars, exhibitions, and parties.
The venue can be divided according to the number of guests, so you can hold your party in different venues, for example.
We can accommodate up to 180 people in a school format and up to 200 people in a buffet format.

A venue divided into the "Ballroom."
This is an ideal venue for meetings, seminars, briefings, and various banquets.
It can accommodate approximately 50 to 100 people for meetings and approximately 80 people for banquets.

We can accommodate a wide range of needs, including meetings and dinners with business partners.
Available for gatherings of up to 50 people.
The bright atmosphere and lighting make it ideal for banquets and meetings.

This venue has a bright, modern atmosphere and wooden flooring, making it suitable for both meetings and dinners.
It can be used for gatherings of 30 to 40 people.
It is ideal for small meetings such as departmental meetings and executive committee meetings, as well as various launch parties and other parties with an intimate atmosphere.
It can also be used for small group gatherings such as interviews, or as a waiting room or waiting room for various banquets.

30㎡ small banquet hall
It can also be used for meetings and preparatory sessions, as a waiting room for lecturers or organizers for lectures or academic conferences held at another venue.

28㎡ small banquet hall
It can be used for meetings, conferences, etc.
It is also ideal as a waiting room for lecturers or as a meeting place for organizers when lectures or academic conferences are held at another venue.

23㎡ small banquet hall
It can be used for meetings, conferences, etc.
It is also ideal as a waiting room for lecturers or as a meeting place for organizers when lectures or academic conferences are held at another venue.